Ter. residenziale in vendita

Castelnuovo Di Porto, Via Francesco Serrani - Stazione Di Castelnuovo Di Porto
€ 35.000
Prezzo aggiornato
3 locali 3 locali
1000 Mq 1000 Mq
1 bagno 1 bagno

Ter. residenziale in vendita

Castelnuovo Di Porto, Via Francesco Serrani - Stazione Di Castelnuovo Di Porto

Descrizione annuncio

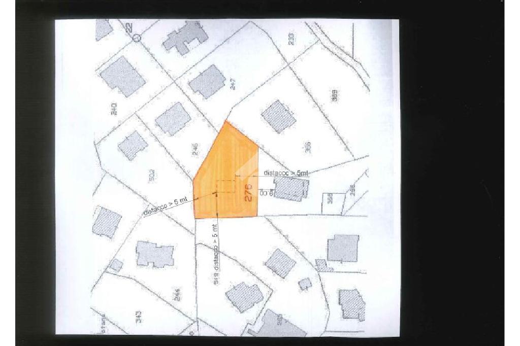
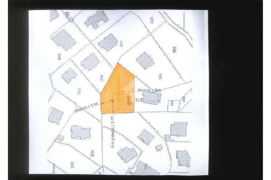
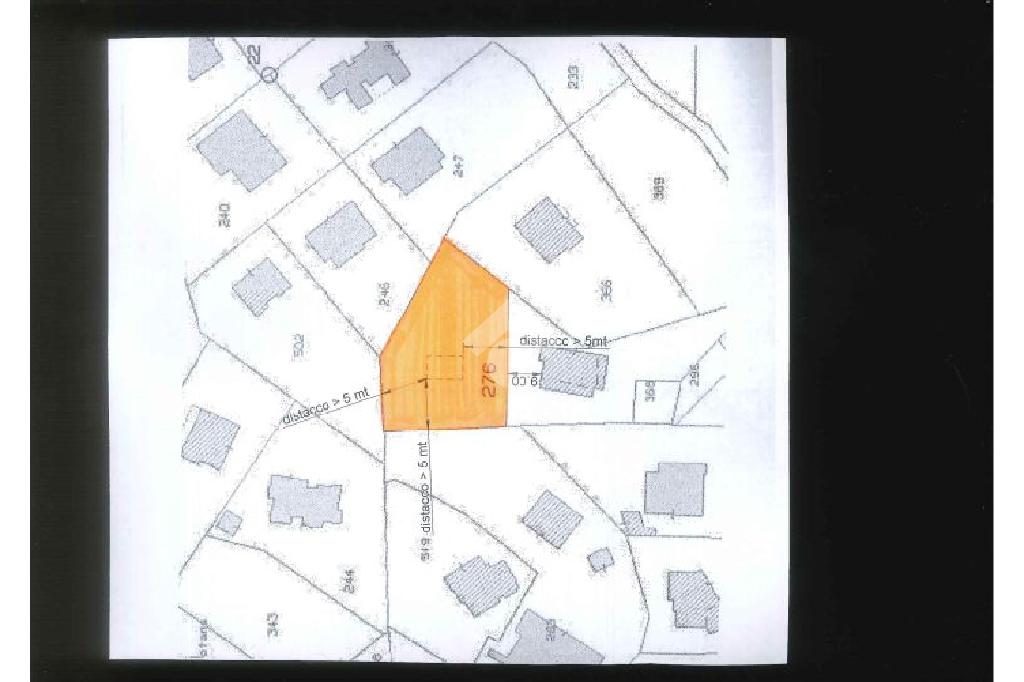
A Castelnuovo di Porto, (RM) in Via Francesco Serrani proponiamo in vendita lotto di terreno edificabile.

Sull'appezzamento, che misura 1000 mq circa, è possibile edificare circa 194 mc ossia circa 60 mq abitativi oltre a piani seminterrati e sottotetto.

Il terreno, che sorge in zona urbanizzata, si trova in posizione dominante ed assolata, vicino ad altre abitazioni. Buono il grado di indipendenza pur trovandosi in contesto residenziale e non isolato.

Allacci alle utenze pubbliche da realizzare.

Il lotto dista solo 1 km da Via Flaminia che è la via principale del paese dove sono presenti le principali attività come: supermercato, bar, tabaccheria, fermata cotral e stazione ferroviaria con tratta Roma- Civita Castellana- Viterbo.

Classe energetica: esente

Mostra tutto

Nelle vicinanze

Trasporto pubblico Trasporto pubblico
Castelnuovo di Porto
Castelnuovo di Porto
890 m
Morlupo - Capena
Morlupo - Capena
2,3 Km
Trasporto pubblico
820 m
Farmacia Farmacia
Farmacia
940 m
Farmacia Comunale
2,7 Km
Farmacia Nappo Carla
2,9 Km
Ospedali Ospedali
Croce Rossa Morlupo
2,5 Km
Supermercati Supermercati
Supermercati
990 m
Carrefour
1,6 Km
Carrefour Express Morlupo
2,3 Km
Centro Commerciale Antica Via
2,6 Km
Margherita Conad
2,7 Km
Negozi Negozi
Flash Moda
2,8 Km
Beverly
2,8 Km
Alori
2,9 Km
Ristoranti Ristoranti
Al Raduno
1,2 Km
Il Campagnolo
1,6 Km
Pizza Elio
2,3 Km
Trattoria da Giglietto
2,7 Km
La Piazzetta
2,7 Km
Mostra tutto

Caratteristiche

Rif.:
61112753
Piano:
1 di 1 (Piano terra)
Posti auto:
2
Balconi:
1
Terrazzi:
1
Camere da letto:
2
Mostra tutto
Prezzo Prezzo
€ 35.000
Rata mutuo Rata mutuo
€ 161 / mese
Spese annue Spese annue
€ 1
Proponi il tuo prezzoProponi il tuo prezzo

Classe Energetica

Questo immobile è esente da classe energetica
Anno di costruzione:
1967
Riscaldamento:
Autonomo
Tipo impianto:
A radiatori
Tipo alimentazione:
Metano

Prezzo ridotto di €1 (13%%)

Ti interessa visionare l'immobile?

Fissa un appuntamento  Fissa un appuntamento

Richiedi informazioni

* Questi campi sono obbligatori

Calcola il tuo mutuo

Semplice e senza impegno
Anticipo

( % )
Mutuo

( % )

pochi semplici passi

inserisci i tuoi dati
Questionario completato
Grazie per aver richiesto un appuntamento senza impegno con un nostro Consulente del Credito e Assicurativo.

Hai inserito correttamente tutti i dati necessari e a breve riceverai una e-mail con un link da convalidare per inviare i tuoi dati.
Affiliato
Grupposabinamorlupo Srl
Via San Michele, 9/B 00067 Morlupo (RM)

Il nostro staff


  • Andrea Lucio Giulivi
    Affiliato

  • Valeria Conti
    Coordinatrice

  • Gianluca Fioroni
    Affiliato
Via San Michele, 9/B 00067 Morlupo (RM)
Zona: Morlupo-Castelnuovo di Porto
Mostra su mappa
Orari: Dal lunedì al venerdì 08:30-13:00/14:30-19:00. Il sabato effettuiamo orario continuato 08:30-17:30
Affiliato
Grupposabinamorlupo Srl
Via San Michele, 9/B 00067 Morlupo (RM)

2025 Tecnocasa Franchising S.p.A. - P. IVA 08365160152 - Via Monte Bianco 60/A 20089 Rozzano (MI). Ogni agenzia ha un proprio titolare ed è autonoma. Privacy policy | Policy utilizzo | Cookie policy