Villa a schiera in vendita

Castelnuovo Di Porto, Via montetufello - Girardi-Bellavista-Terrazze
€ 177.000
5 locali 5 locali
120 Mq 120 Mq
2 bagni 2 bagni

Villa a schiera in vendita

Castelnuovo Di Porto, Via montetufello - Girardi-Bellavista-Terrazze

Descrizione annuncio

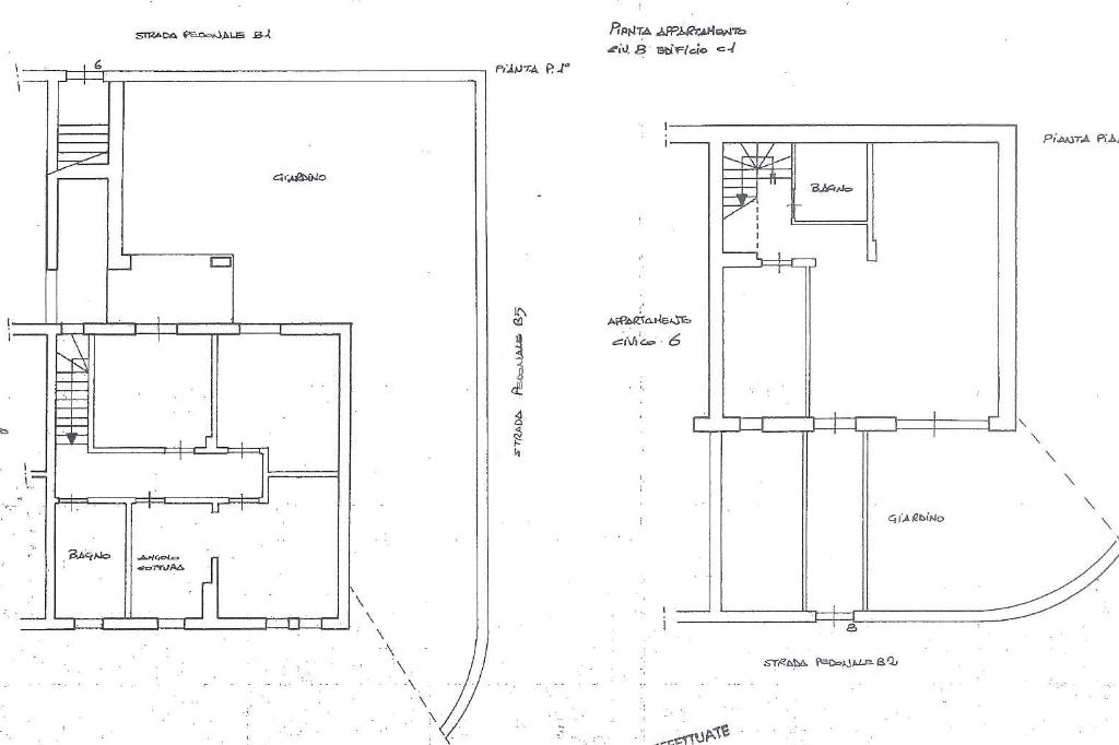
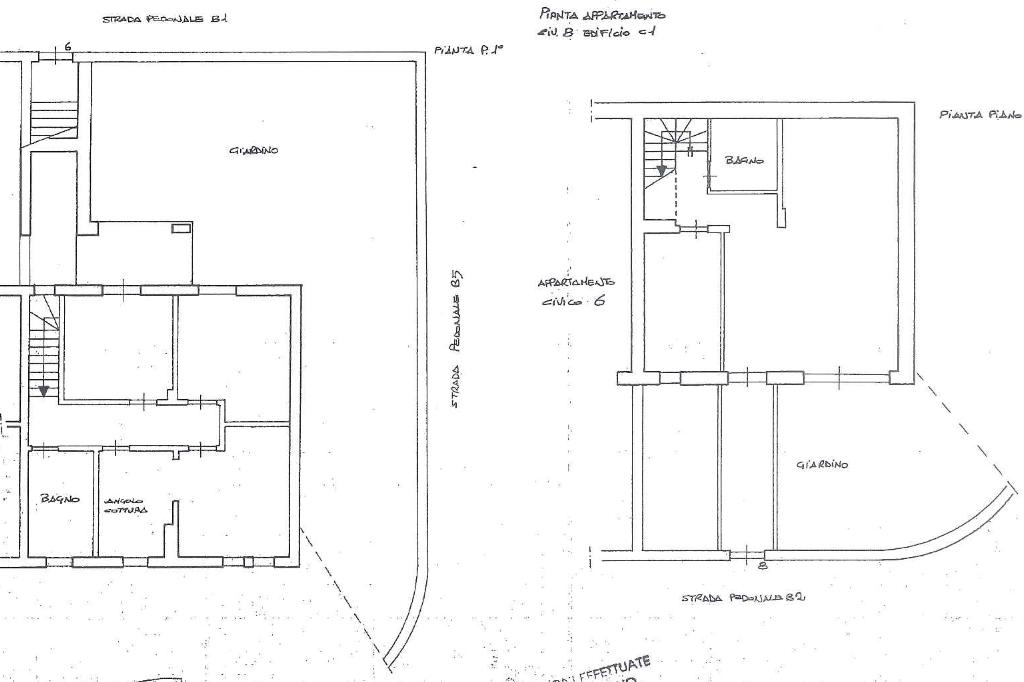
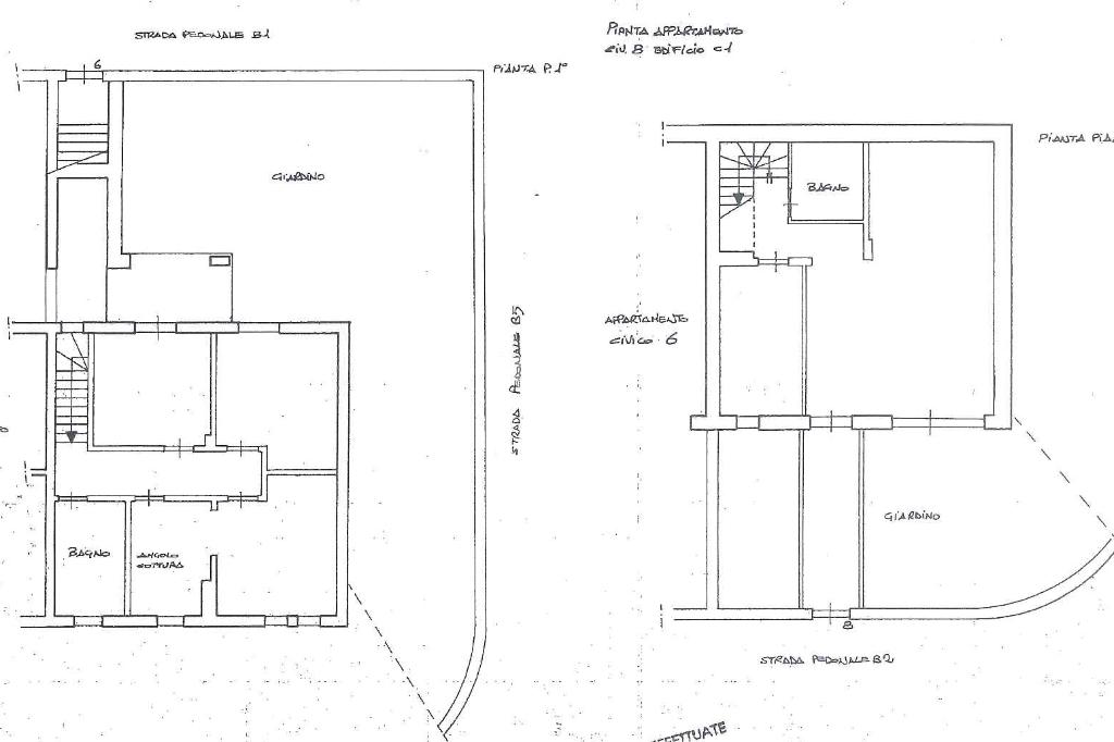
Castelnuovo di Porto- Villino capo schiera su due livelli con ampio giardino

In contesto rersidenziale tranquillo e ben collegato proponiamo in vendita villino capo schiera su due livelli di 120 mq ca ideale come prima casa per famiglie o giovani coppie.

L'iimobile si sviluppa su piano terra e primo livello ed è cosi' composto: Ampio salone con aria condizionata cucina semi abitabile e bagno al piano terra. Al piano primo troviamo una camera da letto matrimoniale con predisposizione per bagno interno o cabina armadio,due camerette ed un bagno.

Completa la proprietà un giardino perimetrale,perfetto per momenti di relax all'aperto cene estive o per chi ha animali domestici, oltre ad un posto auto scoperto.

La soluzione gode di ottima esposizione, privacy e soazi ben distribuiti, inserita in una zona riservata ma comoda ai principali servizi e collegamenti, in quanto si trova ad 1 km dal casello autostradale di Castelnuovo di Porto a 6 km circa dalla stazione FS di Monterotondo scalo ed a 2 km ca dalla zona commerciale di via Tiberina.

Mostra tutto

Nelle vicinanze

Farmacia Farmacia
Farmacia
2,2 Km
Supermercati Supermercati
Supermercati
2,3 Km
Negozi Negozi
Negozi
2,2 Km
Zero Gradi
2,6 Km
Ristoranti Ristoranti
Dai Nobili
1,7 Km
Mostra tutto

Caratteristiche

Rif.:
61161952
Piano:
Basso di 2
Totale piani:
2
Posti auto:
1
Camere da letto:
3
Arredamento:
Assente
Mostra tutto
Prezzo Prezzo
€ 177.000
Rata mutuo Rata mutuo
€ 826 / mese
Spese annue Spese annue
€ 800
Proponi il tuo prezzoProponi il tuo prezzo

Classe Energetica

G
G
G
G
G
G
G
G
G
EP globale non rinnovabile:
2578.00 kW h/m² anno
EP globale rinnovabile:
52.00 kW h/m² anno
EP invernale del fabbricato:
EP estiva del fabbricato:
Anno di costruzione:
1995
Riscaldamento:
Autonomo
Tipo impianto:
A radiatori
Tipo alimentazione:
Metano

Ti interessa visionare l'immobile?

Fissa un appuntamento  Fissa un appuntamento

Richiedi informazioni

Clicca su Leggi per aprire l'informativa
* Questi campi sono obbligatori

Calcola il tuo mutuo

Semplice e senza impegno
Anticipo

( % )
Mutuo

( % )

pochi semplici passi

inserisci i tuoi dati
Questionario completato
Grazie per aver richiesto un appuntamento senza impegno con un nostro Consulente del Credito e Assicurativo.

Hai inserito correttamente tutti i dati necessari e a breve riceverai una e-mail con un link da convalidare per inviare i tuoi dati.
Affiliato
Grupposabinamorlupo Srl
Via San Michele, 9/B 00067 Morlupo (RM)

Il nostro staff


  • Andrea Lucio Giulivi
    Affiliato

  • Valeria Conti
    Coordinatrice

  • Gianluca Fioroni
    Affiliato
Via San Michele, 9/B 00067 Morlupo (RM)
Zona: Morlupo-Castelnuovo di Porto
Mostra su mappa
Orari: Dal lunedì al venerdì 08:30-13:00/14:30-19:00. Il sabato effettuiamo orario continuato 08:30-17:30
Affiliato
Grupposabinamorlupo Srl
Via San Michele, 9/B 00067 Morlupo (RM)

2026 Tecnocasa Franchising S.p.A. - P. IVA 08365160152 - Via Monte Bianco 60/A 20089 Rozzano (MI). Ogni agenzia ha un proprio titolare ed è autonoma. Privacy policy | Policy utilizzo | Cookie policy