Villa singola in vendita

Castelnuovo Di Porto, Via belvedere - Stazione Di Castelnuovo Di Porto
€ 389.000
Prezzo aggiornato
7 locali 7 locali
347 Mq 347 Mq
2 bagni 2 bagni

Villa singola in vendita

Castelnuovo Di Porto, Via belvedere - Stazione Di Castelnuovo Di Porto

Descrizione annuncio

VILLA SINGOLA CON GIARDINO E VISTA PANORAMICA – CASTELNUOVO DI PORTO (VIA BEL VEDERE)

In posizione tranquilla e riservata, ma a pochi passi da tutti i principali servizi, proponiamo in vendita una splendida villa unifamiliare sviluppata su due livelli, ideale per famiglie numerose o per chi desidera una soluzione con doppia unità abitativa.

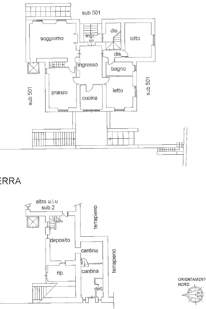
Al piano terra l’immobile si apre su un comodo ingresso dal quale si può accedere ai vari spazi che compongono la zona giorno della casa, come : l’ampio salone finestrato ,la sala da pranzo adiacente alla cucina semi-abitabile, la veranda con affaccio sul giardino, la camera matrimoniale, la cameretta e il bagno.

Il primo piano, invece, accessibile sia tramite scala interna che con ascensore, ospita un secondo appartamento completamente ristrutturato nel 2019, composto da: ingresso, cucina abitabile, grande salone luminoso, una camera matrimoniale, uno studio e un bagno. Completano il piano: un terrazzino accessibile dall’ingresso e un balcone collegato alla camera matrimoniale

Il vero punto di forza della proprietà è rappresentato dagli ampi spazi esterni, che includono: grande giardino privato e uno spazioso terrazzo al piano terra.

Si tratta di una soluzione unica, perfetta per chi cerca comfort, indipendenza e ampi spazi sia interni che esterni, senza rinunciare alla comodità dei servizi nelle immediate vicinanze.

MATERIALI UTILIZZATI: Gli infissi interni sono costituiti da un doppio vetro PVC mentre quelli esterni sono in ferro; le porte interne sono in legno mentre i pavimenti si alternano tra parquet e gres porcellanato. L’immobile è inoltre dotato di: porta blindata, allarme, allaccio in fogna comunale con acqua diretta, impianto termino a gas metano, riscaldamento a pallet e un impianto elettrico alimentato da pannelli fotovoltaici con batterie di accumulo.

Mostra tutto

Nelle vicinanze

Trasporto pubblico Trasporto pubblico
Castelnuovo di Porto
Castelnuovo di Porto
550 m
Morlupo - Capena
Morlupo - Capena
2,1 Km
Trasporto pubblico
470 m
Farmacia Farmacia
Farmacia
520 m
Farmacia Comunale
2,4 Km
Farmacia Nappo Carla
3,0 Km
Ospedali Ospedali
Croce Rossa Morlupo
2,2 Km
Supermercati Supermercati
Supermercati
930 m
Carrefour
1,2 Km
Carrefour Express Morlupo
2,2 Km
Margherita Conad
2,3 Km
Centro Commerciale Antica Via
2,3 Km
Negozi Negozi
Flash Moda
2,5 Km
Beverly
2,6 Km
Alori
2,6 Km
Le Due Rose
2,8 Km
Ristoranti Ristoranti
Al Raduno
960 m
Il Campagnolo
1,4 Km
Pizza Elio
2,1 Km
Trattoria da Giglietto
2,3 Km
La Piazzetta
2,3 Km
Mostra tutto

Caratteristiche

Rif.:
61196099
Piano:
3 di 2 con ascensore (Piano terra)
Posti auto:
1
Balconi:
1
Terrazzi:
2
Camere da letto:
3
Mostra tutto
Prezzo Prezzo
€ 389.000
Prezzo box Prezzo box
€ 1
Rata mutuo Rata mutuo
€ 1.839 / mese
Spese annue Spese annue
€ 1
Proponi il tuo prezzoProponi il tuo prezzo

Classe Energetica

C
C
C
C
C
C
C
C
C
EP globale non rinnovabile:
120.89 kW h/m² anno
EP globale rinnovabile:
10.40 kW h/m² anno
EP invernale del fabbricato:
EP estiva del fabbricato:
Anno di costruzione:
1958
Riscaldamento:
Autonomo
Tipo impianto:
A stufa
Tipo alimentazione:
Metano

Prezzo ridotto di €1 (8%%)

Ti interessa visionare l'immobile?

Fissa un appuntamento  Fissa un appuntamento

Richiedi informazioni

Clicca su Leggi per aprire l'informativa
* Questi campi sono obbligatori

Calcola il tuo mutuo

Semplice e senza impegno
Anticipo

( % )
Mutuo

( % )

pochi semplici passi

inserisci i tuoi dati
Questionario completato
Grazie per aver richiesto un appuntamento senza impegno con un nostro Consulente del Credito e Assicurativo.

Hai inserito correttamente tutti i dati necessari e a breve riceverai una e-mail con un link da convalidare per inviare i tuoi dati.
Affiliato
Grupposabinamorlupo Srl
Via San Michele, 9/B 00067 Morlupo (RM)

Il nostro staff


  • Gianluca Fioroni
    Affiliato
Via San Michele, 9/B 00067 Morlupo (RM)
Zona: Morlupo-Castelnuovo di Porto
Mostra su mappa
Orari: Dal lunedì al venerdì 08:30-13:00/14:30-19:00. Il sabato effettuiamo orario continuato 08:30-17:30
Affiliato
Grupposabinamorlupo Srl
Via San Michele, 9/B 00067 Morlupo (RM)

2026 Tecnocasa Franchising S.p.A. - P. IVA 08365160152 - Via Monte Bianco 60/A 20089 Rozzano (MI). Ogni agenzia ha un proprio titolare ed è autonoma. Privacy policy | Policy utilizzo | Cookie policy