Trilocale in vendita

Morlupo, P.za delle Carrette
€ 79.000
Prezzo aggiornato
3 locali 3 locali
80 Mq 80 Mq
1 bagno 1 bagno

Trilocale in vendita

Morlupo, P.za delle Carrette

Descrizione annuncio

Nel CENTRO di Morlupo(RM), A Piazza delle Carrette , proponiamo in vendita caratteristico appartamento trilocale in ottimo stato.

DESCRIZIONE IMMOBILE

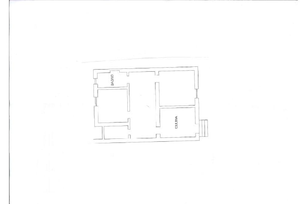
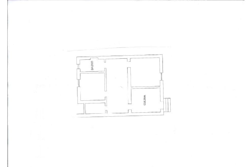
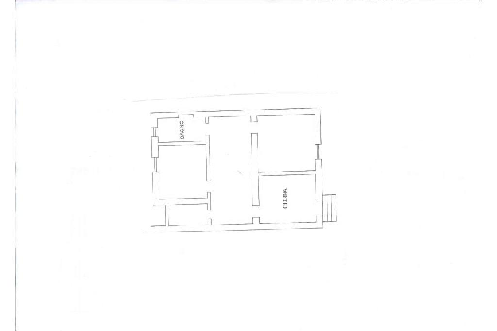
L'immobile misura circa 80 mq ed è ubicato al piano terra su Piazza delle Carrette, in prossimità di tutti i servizi e del parcheggio pubblico.

Internamente l'immobile è così suddiviso: cucina abitabile con camino, ampio soggiorno con soffitti in legno, due camere da letto, ripostiglio e bagno con doccia.

Da qui puoi ammirare scorci suggestivi sul borgo.

DETTAGLI AGGIUNTIVI

La casa è stata ristrutturata nel 2018 e l'interno si trova in ottime condizioni .

Dati tecnici: infissi con doppio vetro/PVC con persiane in ferro, come fonte di riscaldamento troviamo il camino e allaccio al gas metano, inoltre vi è acqua diretta e fognatura comunale.

Nel borgo di Morlupo troviamo tutti i principali servizi come: supermercato, scuole, poste, macelleria, bar, farmacia.

La Via Flaminia e la stazione ferroviaria con tratta Roma Viterbo, si trovano a soli 5 minuti di macchina.

E' l'immobile perfetto per chi sogna di avere un delizioso rifugio in un borgo storico e di vivere le meraviglie, i panorami e le stradine ricche di storia che caratterizzano la campagna romana, lontano dal caos e dallo stress cittadino.

Mostra tutto

Nelle vicinanze

Trasporto pubblico Trasporto pubblico
Morlupo - Capena
Morlupo - Capena
1,3 Km
Castelnuovo di Porto
Castelnuovo di Porto
1,7 Km
Trasporto pubblico
800 m
Scuole Scuole
Scuole
740 m
Istituto Comprensivo Capena
3,0 Km
Farmacia Farmacia
Farmacia Comunale
100 m
Farmacia
1,3 Km
Ospedali Ospedali
Croce Rossa Morlupo
1,1 Km
Supermercati Supermercati
Margherita Conad
180 m
Centro Commerciale Antica Via
860 m
Carrefour Express Morlupo
1,4 Km
Eurospin
2,0 Km
Carrefour
2,1 Km
Negozi Negozi
Le Due Rose
660 m
Beverly
810 m
Alori
820 m
Flash Moda
890 m
Central Market
2,7 Km
Ristoranti Ristoranti
La Piazzetta
120 m
Le Caverne del Norcino
150 m
Pizzeria Diamanti Rita
190 m
Trattoria da Giglietto
190 m
Le Chef
680 m
Mostra tutto

Caratteristiche

Rif.:
61088660
Piano:
3 di 1 (Piano terra)
Camere da letto:
2
Arredamento:
Assente
Condizionamento:
Assente
Ascensore:
No
Mostra tutto
Prezzo Prezzo
€ 79.000
Rata mutuo Rata mutuo
€ 351 / mese
Spese annue Spese annue
€ 1
Proponi il tuo prezzoProponi il tuo prezzo
Immobile valutato con TecnoValore

Classe Energetica

G
G
G
G
G
G
G
G
G
EP globale non rinnovabile:
186.38 kW h/m² anno
EP globale rinnovabile:
186.38 kW h/m² anno
EP invernale del fabbricato:
EP estiva del fabbricato:
Anno di costruzione:
1966
Riscaldamento:
Autonomo
Tipo impianto:
A radiatori
Tipo alimentazione:
Metano

Prezzo ridotto di €1 (8%%)

Ti interessa visionare l'immobile?

Fissa un appuntamento  Fissa un appuntamento

Richiedi informazioni

* Questi campi sono obbligatori

Calcola il tuo mutuo

Semplice e senza impegno
Anticipo

( % )
Mutuo

( % )

pochi semplici passi

inserisci i tuoi dati
Questionario completato
Grazie per aver richiesto un appuntamento senza impegno con un nostro Consulente del Credito e Assicurativo.

Hai inserito correttamente tutti i dati necessari e a breve riceverai una e-mail con un link da convalidare per inviare i tuoi dati.
Affiliato
Grupposabinamorlupo Srl
Via San Michele, 9/B 00067 Morlupo (RM)

Il nostro staff


  • Andrea Lucio Giulivi
    Affiliato

  • Valeria Conti
    Coordinatrice

  • Gianluca Fioroni
    Affiliato
Via San Michele, 9/B 00067 Morlupo (RM)
Zona: Morlupo-Castelnuovo di Porto
Mostra su mappa
Orari: Dal lunedì al venerdì 08:30-13:00/14:30-19:00. Il sabato effettuiamo orario continuato 08:30-17:30
Affiliato
Grupposabinamorlupo Srl
Via San Michele, 9/B 00067 Morlupo (RM)

2025 Tecnocasa Franchising S.p.A. - P. IVA 08365160152 - Via Monte Bianco 60/A 20089 Rozzano (MI). Ogni agenzia ha un proprio titolare ed è autonoma. Privacy policy | Policy utilizzo | Cookie policy