Villa singola in vendita

Morlupo, Via Dei Villini
€ 299.000
Prezzo aggiornato
7 locali 7 locali
220 Mq 220 Mq
2 bagni 2 bagni

Villa singola in vendita

Morlupo, Via Dei Villini

Descrizione annuncio

In una delle vie più richieste di Morlupo, in via proponiamo in vendita villa indipendente con giardino e vista panoramica.

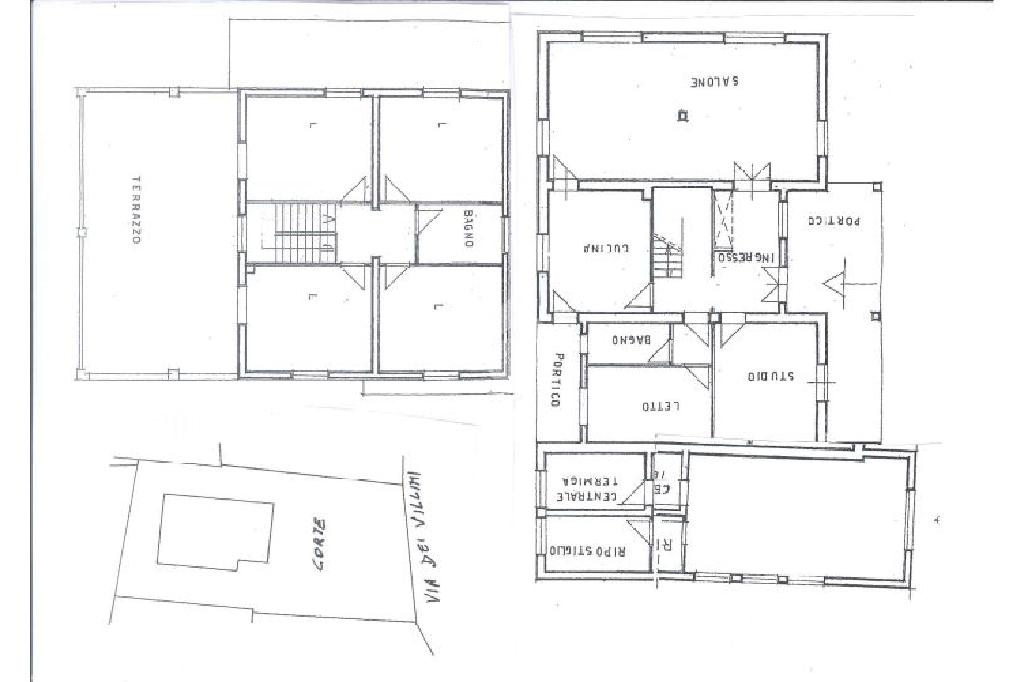
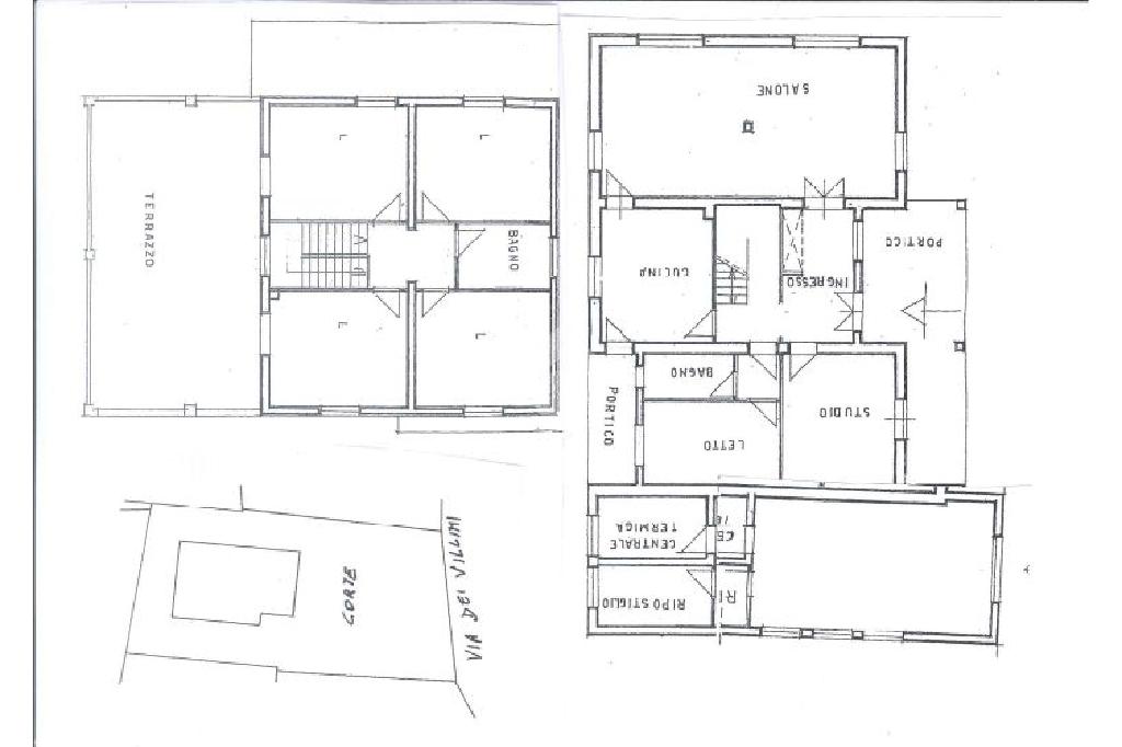
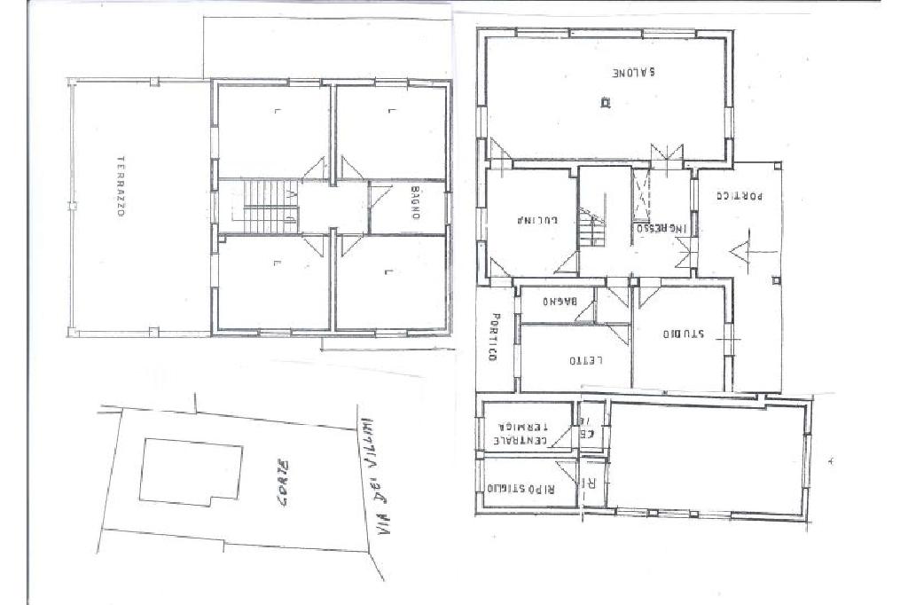
DESCRIZIONE IMMOBILE: L'immobile con comodo ed esclusivo accesso misura circa 220 mq e si sviluppa ai piani terra e primo con ulteriori vani al piano seminterrato e secondo.

Al PIANO TERRA mediante un portico di ampie dimensioni si accede all'abitazione dove vi è un luminoso salone, disimpegno, cucina abitabile con accesso diretto al giardino, una camera da letto attualmente adibita a studio, lavanderia ed un bagno con vasca e doccia.

Una scala interna conduce alla zona notte sita al PIANO PRIMO e costituita da 4 ampie e luminose camere matrimoniali di cui due con accesso diretto al terrazzo panoramico di 40 mq, disimpegno e bagno con vasca.

Completa la proprietà box auto di 40 mq, accessibile sia dall'interno dell'abitazione che dotato di ingresso indipendente ed un giardino di circa 1000 mq di cui una parte pavimentata.

Una villa che unisce bellezza e comodità, questa soluzione abitativa gode di una posizione centrale, a pochi passi da tutti i servizi essenziali: scuole, negozi, trasporti e molto altro.

DETTAGLI AGGIUNTIVI: La casa è stata edificata fine anni '70 e anni '80 e l'interno si trova in discrete condizioni.

Dati tecnici: infissi doppio vetro/legno con persiane blindate, porte interne in legno e portone d'accesso blindato riscaldamento autonomo con termosifoni che è alimentato da gas diretto, inoltre vi è acqua diretta e fognatura comunale. A Morlupo troviamo tutti i principali servizi come: scuole, poste, macelleria, bar, farmacia il casello autostradale di Castelnuovo di Porto si trova a circa 15 minuti di auto, mentre la Via Flaminia e la stazione di Morlupo, tratta Roma-Viterbo, distano circa 300 metri.

E' l'immobile adatto a chi desidera avere una casa indipendente con giardino a massimo 30 MINUTI da Roma, nella tranquillità della campagna romana , ad un passo dai servizi.

Mostra tutto

Nelle vicinanze

Trasporto pubblico Trasporto pubblico
Morlupo - Capena
Morlupo - Capena
60 m
Magliano Romano
Magliano Romano
1,1 Km
Trasporto pubblico
90 m
Scuole Scuole
Scuole
1,9 Km
Farmacia Farmacia
Farmacia
190 m
Farmacia Comunale
1,4 Km
Farmacia Ricci
2,5 Km
Ospedali Ospedali
Croce Rossa Morlupo
360 m
Supermercati Supermercati
Carrefour Express Morlupo
120 m
Centro Commerciale Antica Via
620 m
Eurospin
820 m
Margherita Conad
1,2 Km
EuroSpin
2,4 Km
Negozi Negozi
Flash Moda
800 m
Beverly
870 m
Alori
930 m
Le Due Rose
1,3 Km
Ristoranti Ristoranti
Pizza Elio
90 m
Il Campagnolo
700 m
Al Raduno
1,1 Km
Trattoria da Giglietto
1,2 Km
La Piazzetta
1,3 Km
Mostra tutto

Caratteristiche

Rif.:
61088961
Piano:
2 di 2 (Piano su più livelli)
Box:
1
Posti auto:
1
Terrazzi:
1
Camere da letto:
5
Mostra tutto
Prezzo Prezzo
€ 299.000
Rata mutuo Rata mutuo
€ 1.378 / mese
Spese annue Spese annue
€ 1
Proponi il tuo prezzoProponi il tuo prezzo
Immobile valutato con T·Valuta

Classe Energetica

G
G
G
G
G
G
G
G
G
EP globale non rinnovabile:
295.81 kW h/m² anno
EP globale rinnovabile:
295.81 kW h/m² anno
EP invernale del fabbricato:
EP estiva del fabbricato:
Anno di costruzione:
1974
Riscaldamento:
Autonomo
Tipo impianto:
A radiatori
Tipo alimentazione:
Metano

Prezzo ridotto di €1 (7%%)

Ti interessa visionare l'immobile?

Fissa un appuntamento  Fissa un appuntamento

Richiedi informazioni

* Questi campi sono obbligatori

Calcola il tuo mutuo

Semplice e senza impegno
Anticipo

( % )
Mutuo

( % )

pochi semplici passi

inserisci i tuoi dati
Questionario completato
Grazie per aver richiesto un appuntamento senza impegno con un nostro Consulente del Credito e Assicurativo.

Hai inserito correttamente tutti i dati necessari e a breve riceverai una e-mail con un link da convalidare per inviare i tuoi dati.
Affiliato
Grupposabinamorlupo Srl
Via San Michele, 9/B 00067 Morlupo (RM)

Il nostro staff


  • Andrea Lucio Giulivi
    Affiliato

  • Valeria Conti
    Coordinatrice

  • Gianluca Fioroni
    Affiliato
Via San Michele, 9/B 00067 Morlupo (RM)
Zona: Morlupo-Castelnuovo di Porto
Mostra su mappa
Orari: Dal lunedì al venerdì 08:30-13:00/14:30-19:00. Il sabato effettuiamo orario continuato 08:30-17:30
Affiliato
Grupposabinamorlupo Srl
Via San Michele, 9/B 00067 Morlupo (RM)

2025 Tecnocasa Franchising S.p.A. - P. IVA 08365160152 - Via Monte Bianco 60/A 20089 Rozzano (MI). Ogni agenzia ha un proprio titolare ed è autonoma. Privacy policy | Policy utilizzo | Cookie policy